Lakeshore Drive Zoning Variance hearing May 19, 2021.


Google Maps aerial view of existing lot 400 at the corner of Lakeshore Drive and Rt. 364.
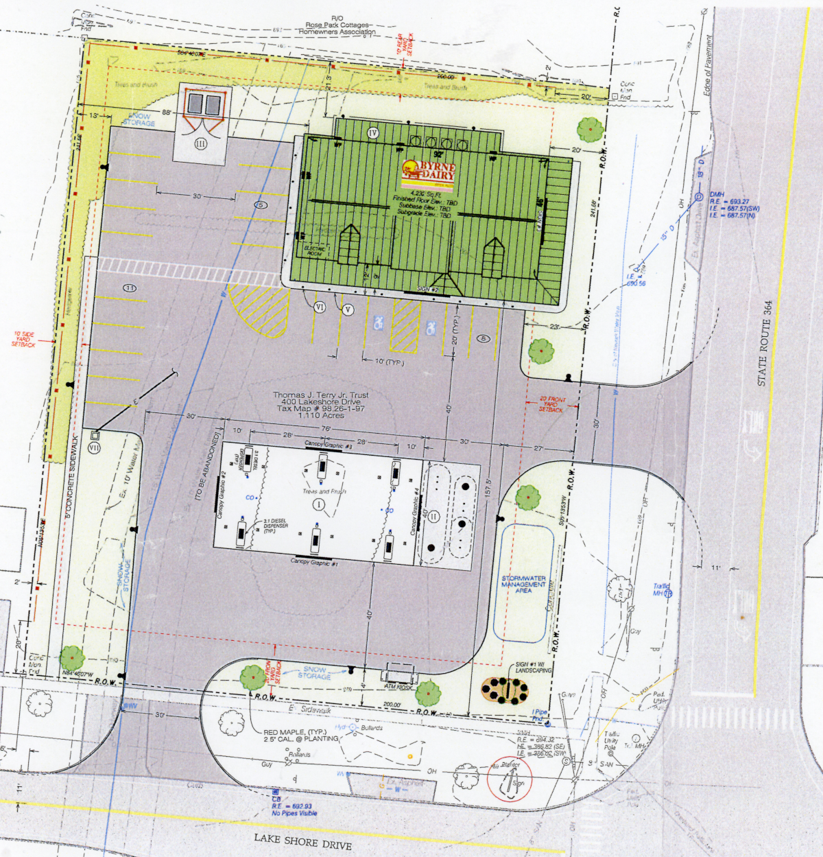
Detail of drawing submitted with variance application.
Overlay of the above two images.
Zoning Variance Hearing Notice